
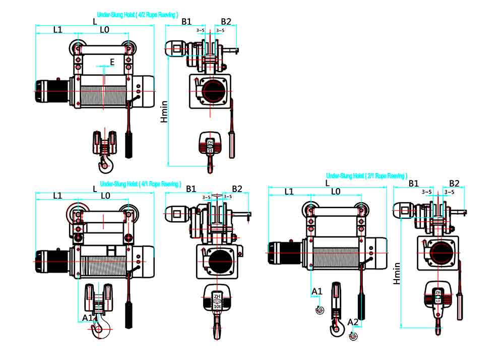
| 懸掛小車式電動葫蘆參數表 Technical data of Under-slung Hoist | ||||||||||||||||||
|
型號 Type |
起重量 Capacity t |
起升速度 Lifting speed m/min |
滑輪倍率 Rope reeving |
工作級別 Working group |
Hmin E |
L,LO |
A1 L1 |
B1 B2 |
H H1 |
H9自重kg Weight |
推薦軌道 Recommended rail |
|||||||
| H4 | H6 | H9 | H12 | H15 | H18 | H24 | H30 | |||||||||||
| ZH320X | 3.2 | 8,8/2.0 | 2/1 | M4 |
1110 - |
- |
1165 365 |
1275 475 |
1385 585 |
1495 695 |
1605 805 |
1825 1025 |
2045 1245 |
627 514 |
411 457 |
695 157 |
420 | 25a-40c |
| 4 | 6.3,6.3/1.6 | 2/1 | M3 | |||||||||||||||
| 3.2 | 8,8/2.0 | 4/2 | M4 |
1000 10.5 |
1385 585 |
1495 695 |
1605 805 |
1825 1025 |
2045 1245 |
2170 1370 |
2550 1750 |
- | -514 |
411 457 |
695 157 |
480 | 25a-40c | |
| 4 | 6.3,6.3/1.6 | 4/2 | M3 | |||||||||||||||
| 5 | 4,4/1.0 | 4/1 | M5 |
1070 - |
1275 475 |
1385 585 |
1335 505 |
1825 1025 |
2045 1245 |
- | - | - |
754 514 |
570 491 |
746 178 |
540 | 28a-45c | |
| 6.3 | 4,4/1.0 | 4/1 | M4 | |||||||||||||||
| 8 | 3.2,3.2/0.8 | 4/1 | M3 | |||||||||||||||
| ZH500X | 5 | 8,8/2.0 | 2/1 | M4 |
1300 - |
- |
1230 400 |
1335 505 |
1445 615 |
1555 725 |
1660 830 |
1875 1045 |
2090 1260 |
646 519 |
570 468 |
816 178 |
560 | 28a-45c |
| 6.3 | 6.3,6.3/1.6 | 2/1 | M3 | |||||||||||||||
| 5 | 8,8/2.0 | 4/2 | M4 |
1140 17 |
1445 615 |
1555 725 |
1660 830 |
1875 1045 |
2090 1260 |
2205 1375 |
2530 1700 |
- |
- 519 |
570 468 |
816 178 |
680 | 28a-45c | |
| 6.3 | 6.3,6.3/1.6 | 4/2 | M3 | |||||||||||||||
| 8 | 4,4/1.0 | 4/1 | M5 |
1330 - |
1335 505 |
1445 615 |
1660 830 |
1875 1045 |
2090 1260 |
- | - | - |
816 519 |
641 491 |
928 243 |
830 | 36a-56c | |
| 10 | 4,4/1.0 | 4/1 | M4 | |||||||||||||||
| 12.5 | 3.2,3.2/0.8 | 4/1 | M3 | |||||||||||||||
| ZH1000X | 10 | 6.3,8,10,6.3/1.6 | 2/1 | M4 |
1640 - |
- |
1440 455 |
1495 510 |
1600 615 |
1705 720 |
1805 820 |
2015 1030 |
2225 1240 |
751 620 |
641 491 |
1063 243 |
950 | 36a-56c |
| 12.5 | 6.3,8 | 2/1 | M3 | |||||||||||||||
| 10 | 6.3,8,10,6.3/1.6 | 4/2 | M4 |
1430 27 |
1600 615 |
1705 720 |
1805 820 |
2015 1030 |
2225 1240 |
2330 1345 |
2635 1650 |
- |
- 620 |
641 491 |
1063 243 |
1200 | 36a-56c | |
| 12.5 | 6.3,8 | 4/2 | M3 | |||||||||||||||
| 16 | 3.2,4,5,3.2/0.8 | 4/1 | M5 |
1630 - |
1495 510 |
1600 615 |
1805 820 |
2015 1030 |
2225 1240 |
- | - | - |
835 620 |
606 466 |
1003 243 |
1500 | 40a-63c | |
| 20 | 3.2,4,5,3.2/0.8 | 4/1 | M4 | |||||||||||||||
| 25 | 3.2,4 | 4/1 | M3 | |||||||||||||||
| 16 | 3.2,4,5,3.2/0.8 | 8/2 | M5 |
1750 - |
1805 820 |
2015 1030 |
2330 1345 |
2635 1650 |
- | - | - | - |
- 655 |
606 486 |
998 215 |
1800 | 40a-63c | |
| 20 | 3.2,4,5,3.2/0.8 | 8/2 | M4 | |||||||||||||||
| 25 | 3.2,4 | 8/2 | M3 | |||||||||||||||